1、增设脱硝氨泄漏智能监测防控系统的必要性
氨气有毒,具有强烈的刺激性臭味,对人体有危害。在空气中氨气的浓度达到0.5-0.6% (按体积计算)时,人在其中停留半小时即可中毒,浓度超过0. 6-1%时可能会造成死亡事故,达到11-14%时可以点燃,达到16-25%时如遇明火会引起爆炸。其泄漏不仅对大气可造成污染,而且对动、植物具有相当的毁灭性。如2013年6月3日吉林宝源丰禽业有限公司的主生产厂房的氨泄漏事故,氨浓度达到了爆炸极限,遇火源先后发生了三次大的爆炸,十几次小的爆炸,过火面积17000平方米,虽出动消防车辆67台、消防人员500余人、120救护车61台、医护人员270余人进行灭火和救护,但仍造成121人死亡、76人受伤,直接经济损失1.82亿元。损失极其巨大,为近10年来伤亡人数最多的事故。
目前,在每个脱硝区域各布置有1台固定位置的氨泄漏检测仪,精度不高,只是定点检测,泄漏点离检测仪较远时,反应迟延时间较长。所以同时采用人工巡检的方式,配备便携式氨浓度检测设备进行定期巡检,巡检间隔长,且当氨发生泄漏时,人工巡检易对工作人员安全产生威胁。
有必要在增设脱硝氨泄漏智能监测防控系统,缩短检测周期,实现对氨泄漏和温度的主动检测,提高安全性。
2、脱硝氨泄漏智能监测防控系统
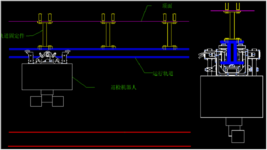
氨泄漏智能监测防控装置须采用轨道安装方式,轨道安装于氨(成品气)管道侧上方,监控装置在轨道上进行24h不间断巡航,搭载红外热成像系统及主动式氨浓度监测系统,完成对含氨设备的无死角全天候监测,及时发现氨泄漏测定其浓度并定位氨泄漏源;搭载声光报警系统,可在紧急事故发生时及时向周边报警。

脱硝氨泄漏智能监测防控系统

脱硝氨泄漏智能监测防控系统

现场安装示意图


首页
产品中心
新闻资讯
联系我们